Armonia degli spazi e benessere costruito attorno alla persona
Il progetto di restyling della sede Euroelettric Impianti srl nasce da un’attenta riflessione sulla qualità degli spazi vissuti quotidianamente. Ogni elemento è stato studiato e organizzato all’interno del layout distributivo con l’obiettivo di creare un ambiente di lavoro funzionale, accogliente ed ergonomico. L’integrazione armonica di showroom, sale riunioni, aree operative, spazi dedicati alla collaborazione, zone break e soluzioni di contenimento contribuisce a un equilibrio complessivo capace di favorire il benessere delle persone e migliorare l’esperienza lavorativa.
Il dialogo diretto con il personale ha rappresentato una fase centrale del processo progettuale. L’ascolto delle esigenze individuali ha permesso di sviluppare soluzioni concrete e personalizzate, orientate a valorizzare il comfort e l’efficienza lavorativa di chi vive gli spazi tutti i giorni.
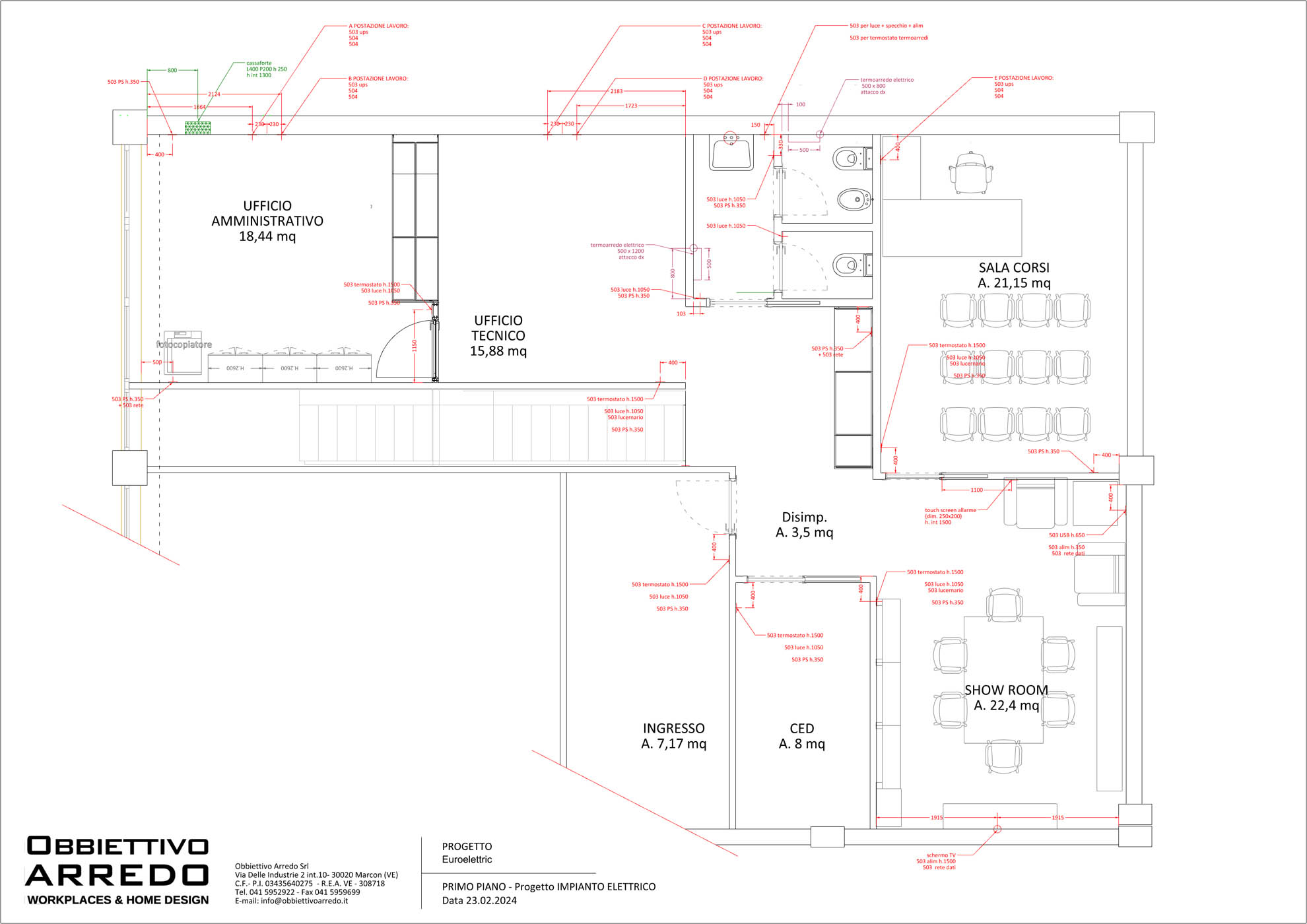
Un ruolo fondamentale è stato affidato al progetto illuminotecnico, concepito con scenari emozionali nelle zone dedicate all’accoglienza, e funzionali nelle zone operative. La combinazione calibrata di luce naturale e artificiale, nel pieno rispetto delle normative vigenti, risponde alle diverse esigenze lavorative degli ambienti.
L’ingresso e l’accesso al piano superiore sono caratterizzati da tagli di luce che modellano lo spazio e ne accentuano la dinamica, scomponendo i volumi e modificandone la percezione. La scala in stile industriale è stata mantenuta e valorizzata attraverso l’inserimento di un corrimano realizzato su misura.
Piano Terra
Il piano terra ospita un’accogliente area break, dotata di cucina con frigo e macchina del caffè, tavolo alto e sgabelli, pensata come spazio informale di pausa e condivisione. Adiacente si trova la sala riunioni, attrezzata con schermo per presentazioni e arricchita da una parete decorativa – realizzata da Resinalab – che richiama e rafforza l’identità visiva dell’azienda.
Gli arredi presenti nella sala riunioni sono in parte recuperati e reinterpretati, in linea con l’approccio sostenibile di Obbiettivo Arredo. Il recupero e la valorizzazione degli arredi esistenti rappresentano una scelta progettuale consapevole, orientata alla riduzione degli sprechi attraverso il riutilizzo intelligente delle risorse. Questo processo include la verifica delle prestazioni funzionali, eventuali interventi di aggiornamento e l’integrazione con nuovi elementi, al fine di garantire efficienza, comfort e coerenza estetica.
Primo Piano
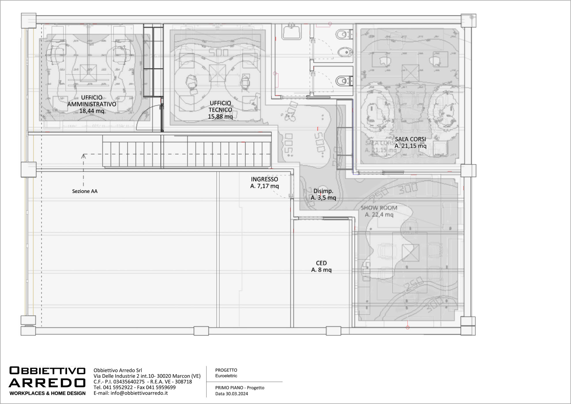
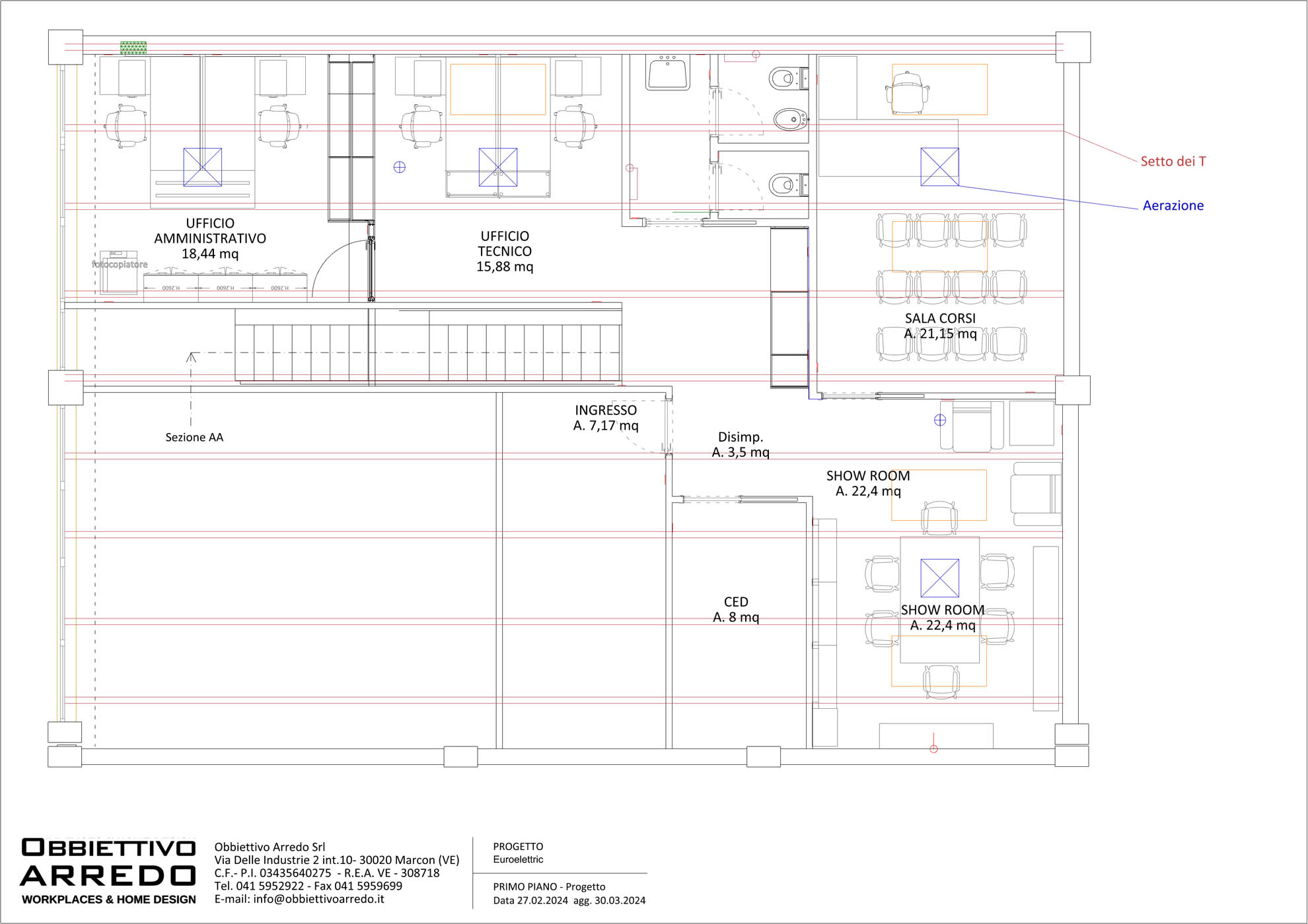
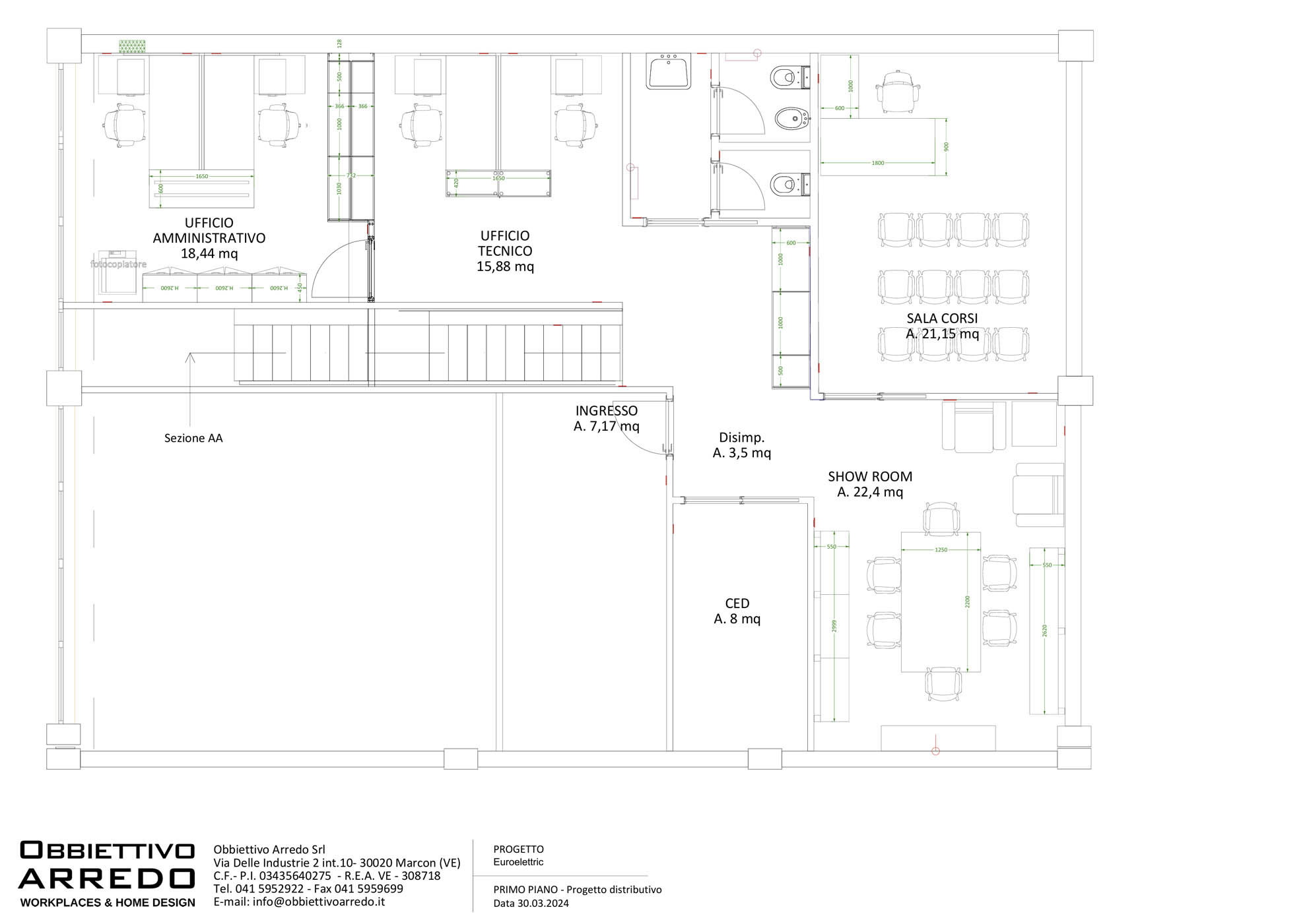
Il piano superiore accoglie diverse funzioni operative e rappresentative:
- Showroom aziendale, progettato con espositori su misura e completato da un’area meeting. La parete di fondo, caratterizzata da una finitura scenografica di Resinalab (https://www.resinalab.com/), è attrezzata con schermo per le presentazioni.
- Sala corsi, uno spazio flessibile con capienza fino a 12 partecipanti, concepito per adattarsi anche a ufficio privato grazie a una postazione di lavoro ampia e funzionale, ideale per un utilizzo direzionale.
- Ufficio tecnico e ufficio amministrativo, separati da una parete attrezzata bifacciale che garantisce privacy e offre soluzioni di contenimento accessibili da entrambi gli ambienti.
Tutti gli spazi beneficiano di un’illuminazione naturale ottimale grazie all’inserimento di lucernari, che assicurano comfort visivo e contribuiscono al risparmio energetico.
Nel disimpegno di accesso al piano è stato ricavato uno spazio dedicato al fotocopiatore, posizionato in modo ergonomico per l’operatore. È inoltre presente un vano tecnico, progettato per facilitare l’accessibilità e le operazioni di manutenzione.
Obbiettivo Arredo per Euroelettric Impianti
Il progetto per Euroelettric Impianti interpreta lo spazio di lavoro come un ambiente vivo, capace di adattarsi alle persone e di supportarne il benessere, la concentrazione e la collaborazione. Un intervento che va oltre l’estetica, accompagnando l’azienda in un progetto di rinnovamento con attenzione alla sostenibilità produttiva ed economica. La nostra attenzione nell’organizzazione del cantiere ha permesso di strutturare i lavori seguendo le necessità del cliente, trasformando l’ufficio in uno strumento strategico al servizio dell’azienda e di chi la vive ogni giorno.


















































